ESI-Design_Beacon-Capital_201-California_Water-based-Light-Installation_0001_Web-4-1024x683.jpeg

California Street

 

California Street

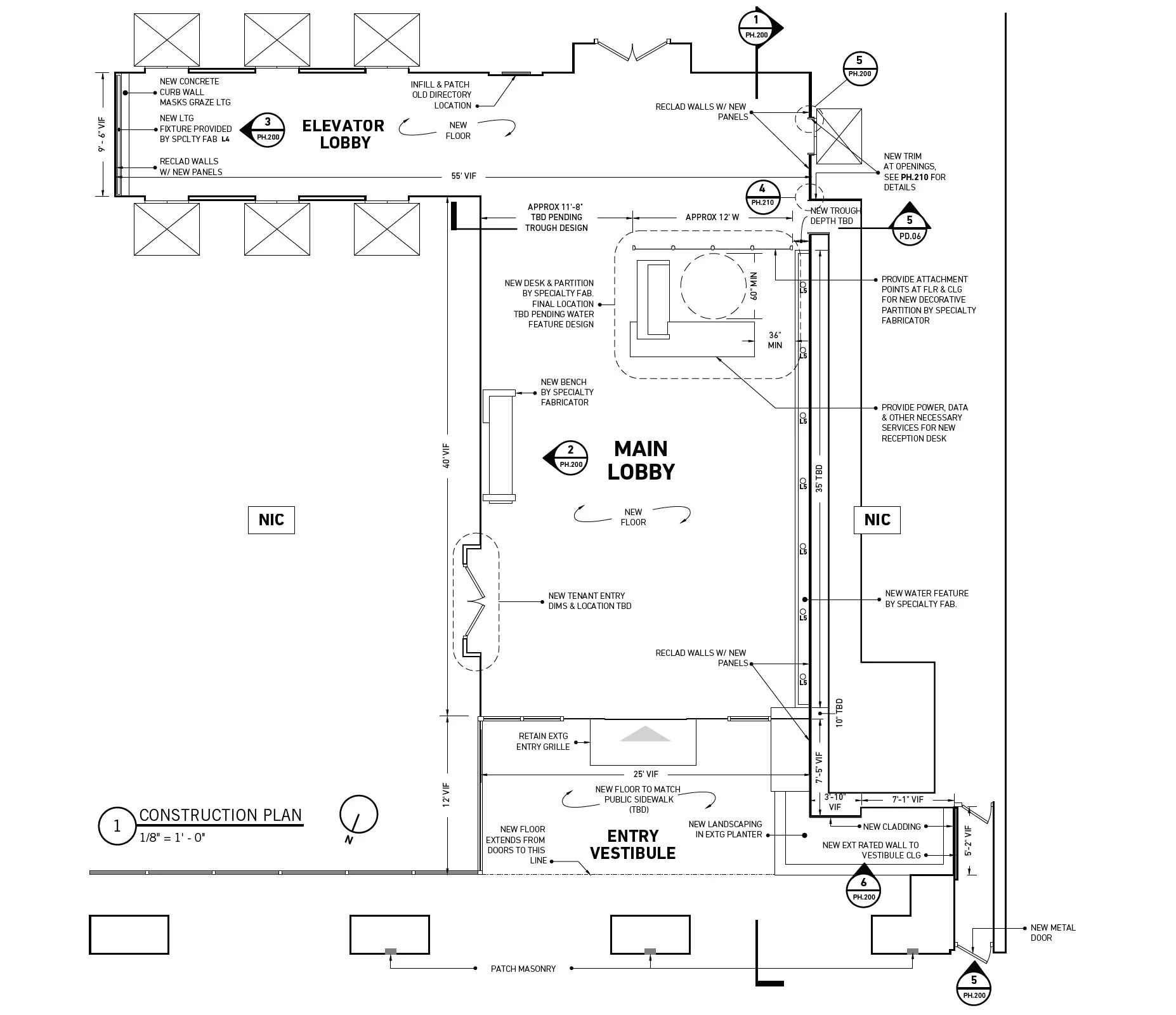
Background

This commercial property in the heart of downtown San Francisco suffered from a dated range of disparate materials, a lack of natural light, and a defunct water feature. The client asked us to develop an identity to suit the building’s new life as a hub for local technology companies.

Strategy

The set-back nature of the lobby meant natural light wasn’t going to be an option. We elected to utilized the slightly dim atmosphere, rather than flood it with unnatural illumination. We transformed the existing water feature into a new dynamic light sculpture, developed a unified suite of custom fixtures, and treated the space with a new refined palette of color and textures.

 

 

Water: A Flexible Lens

We studied the physics of light and optic properties of water. Through dozens of prototypes, we arrived at a design that pushes projected light from below the surface of a fountain up onto a feature wall in the lobby. Programmed water droplets and wavemaking paddles deform the water’s surface, and bend the light into a dynamic and cathartic choreography of dynamic pattern.

 

 

I developed a suite of custom furniture inspired by the geometry of de stijl and the material palette of contemporary Japanese design. A custom aquamarine epoxy floor is inspired by the water of the nearby bay, a central feature of the city.

 
Screen Shot 2019-03-06 at 12.27.59 PM.png
 
 
plan.jpg
 
 

Project Details


Client
BEACON CAPITAL

RESPONSIBILITIES
LEAD DESIGNER, PHYSICAL DESIGNER

Location
SAN FRANCISCO, CALIFORNIA

Status
UNDER CONSTRUCTION