Cash Wrap.jpg

Adidas Brooklyn Nets Store

 

Adidas Brooklyn Nets Store

Background

When the NBA's Nets franchise moved from New Jersey to the renowned Barclays Center in downtown Brooklyn, they combined forces with the world leader in athletic lifestyle wear. The client was specifically seeking a Brooklyn designer and fabrication team to bring this store to life

Strategy

An inaccessible elevator shaft runs right through the irregularly-shaped space, leaving no room for storage. During events the store turns over a huge amount of merchandise relative to its square footage. Together we fashioned a space that announced the team's new street style presence and dedication to its new borough.

 

 

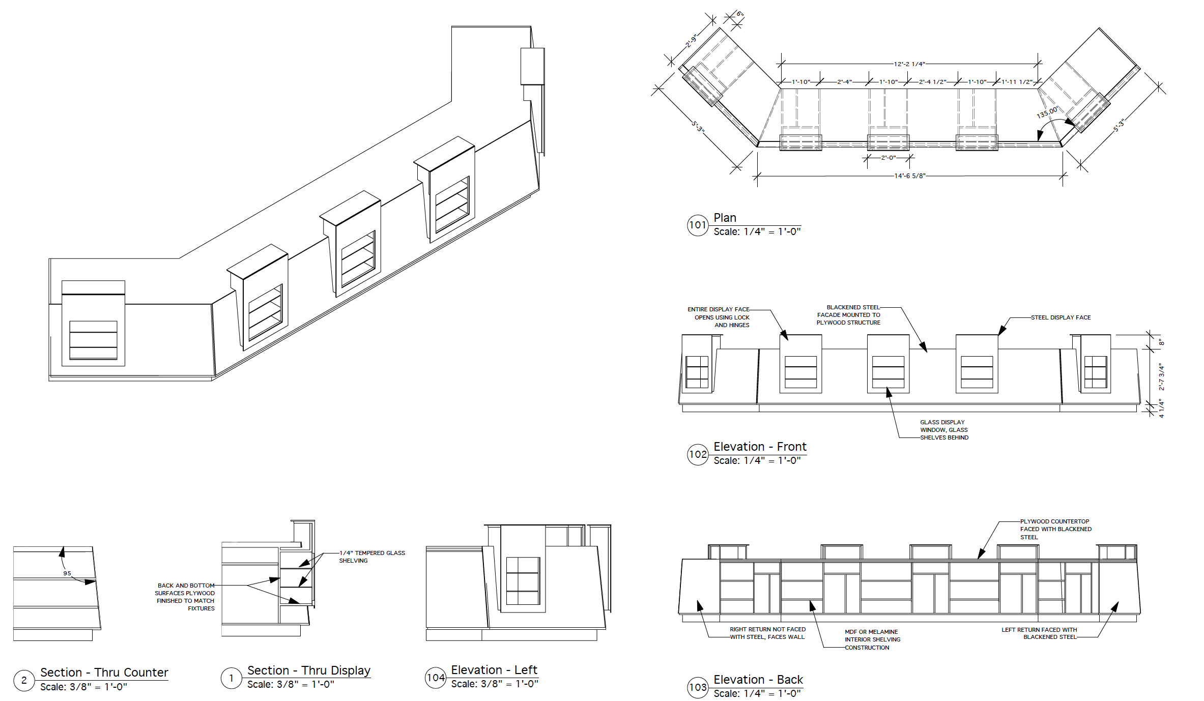
Display fixtures throughout the store needed to house maximum storage. This cap cubby hides 20” deep boxes inset into the wall behind. An inventory of several thousand caps can fit into the cubbies so the store can sell throughout game nights without restocking.

 
Screen Shot 2019-03-04 at 9.51.25 PM.png
 
 
Nets Presentation Plan_Light2.png
 
 

Project Details


Client
ADIDAS/BROOKLYN NETS

RESPONSIBILITIES
LEAD DESIGNER, retail space planning, CONSTRUCTION ADMIN, CARPENTRY

Location
BARCLAYS CENTER, BROOKLYN, New york

Status
Completed 2015